デザイン金属ライブラリは建築、デザインに関わるプロ向けの情報サイトです。
エンジニア向けサイトはこちら JP | EN 

  • 製品情報
    • シリーズ一覧
    • 加工パターン
  • お役立ち情報
  • 採用事例・イメージ
  • 動画
  • ダウンロード
  • よくある質問
  • ショールーム

運営会社
東洋ステンレス研磨工業

デザイン金属ライブラリmako

お問合せ・お見積依頼 東洋ステンレス研磨工業
  • 製品情報
    • シリーズ一覧
    • 加工パターン
  • お役立ち情報
  • 採用事例・イメージ
  • 動画
  • ダウンロード
  • よくある質問
  • ショールーム
お問合せ・お見積依頼
  1. HOME > 加工パターン >

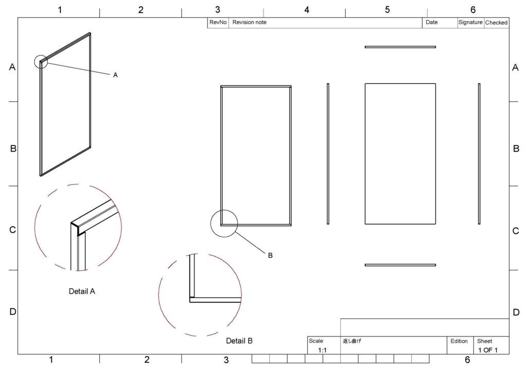
折り返し曲げ加工パネル

写真

背面迄回り込むように曲げ加工し、背面補強材を裏側から固定するパネル。

側面に止め金具やビスが出っ張る事を避ける場合に用いられる加工。

対応可能な素材

  • 【ミステリアスミラー®︎】JEUX D’EAU(ジュ・ドー)
  • ゴールデンダルチタン
  • シャインビーズブラスト
  • スタンダードバイブレーション18A
  • ストリングカーテン
  • バフミラー&ミラー系
  • ヘアライン系意匠材
  • 【ミステリアスミラー®︎】モデル リップルス
  • ゆらぎ
  • 梅枝
  • 【ミステリアスミラー®︎】水明(SUIMEI)
  • 粉雪&粉雪MD

使用事例

表示する関連記事がありません。

関連するお役立ち情報

  • ステンレスパネルの作り方
  • チタンの意匠デザイン加工について
  • ステンレスパネルにおける不均質と均質の差について
施工事例・イメージ
意匠金属makoを採用いただいた事例、イメージ案をご紹介
よくある質問
お客様からいただく、よくある質問をまとめています
お問い合わせ
デザイン金属ライブラリ

  • トップページ
  • ご利用案内
  • サイトマップ
  • 個人情報保護方針

福岡県SDGs MAKOデザインストア

Copyright© MAKO|デザイン金属ライブラリ , 2026 All Rights Reserved.